Oferujemy na sprzedaż atrakcyjny dom z ogródkiem – lokal mieszkalny w budynku jednorodzinnym dwulokalowym przy ul. Roweckiego 18 w Lublinie, 150 metrów od ulicy Wyzwolenia.
Dom jest stworzony z myślą o dużej rodzinie lub osobach pracujących z domu – na parterze znajduje się przestronna część dzienna z wyjściem na taras, na piętrze znajdują się 4 pokoje do zaadaptowania na sypialnie lub gabinety oraz dwie duże łazienki. W bryle budynku znajduje się jednostanowiskowy garaż. Przed garażem znajduje się jeszcze 1 miejsce postojowe. Dom odznacza się gustowną elewacją.
Powierzchnia użytkowa lokalu wynosi ok. 144,86 m2.
Powierzchnia działki przynależnej to ok. 655 m2.
Stan wykończenia: stan deweloperski podwyższony – w standardzie znajdują się m. in.:
– rekuperacja,
– ogrzewanie podłogowe na parterze,
– ściany wewnątrz budynku – wykonano gładzie i pomalowano na biało,
– brama wjazdowa i garażowa na pilota (w trakcie realizacji),
– podjazd, opaska wokół budynku i taras wykonane w kostce,
– działka ogrodzona – systemowe z paneli stalowych ocynkowanych z podwaliną betonową,
– teren zagospodarowany – siatka od kretów, trawa z rolki (w trakcie realizacji).
Poniżej prezentujemy rzuty pomieszczeń, zdjęcia i standard wykonania lokalu. Zainteresowanych zapraszamy do obejrzenia domów – tel. kontaktowy 601 81 55 61.
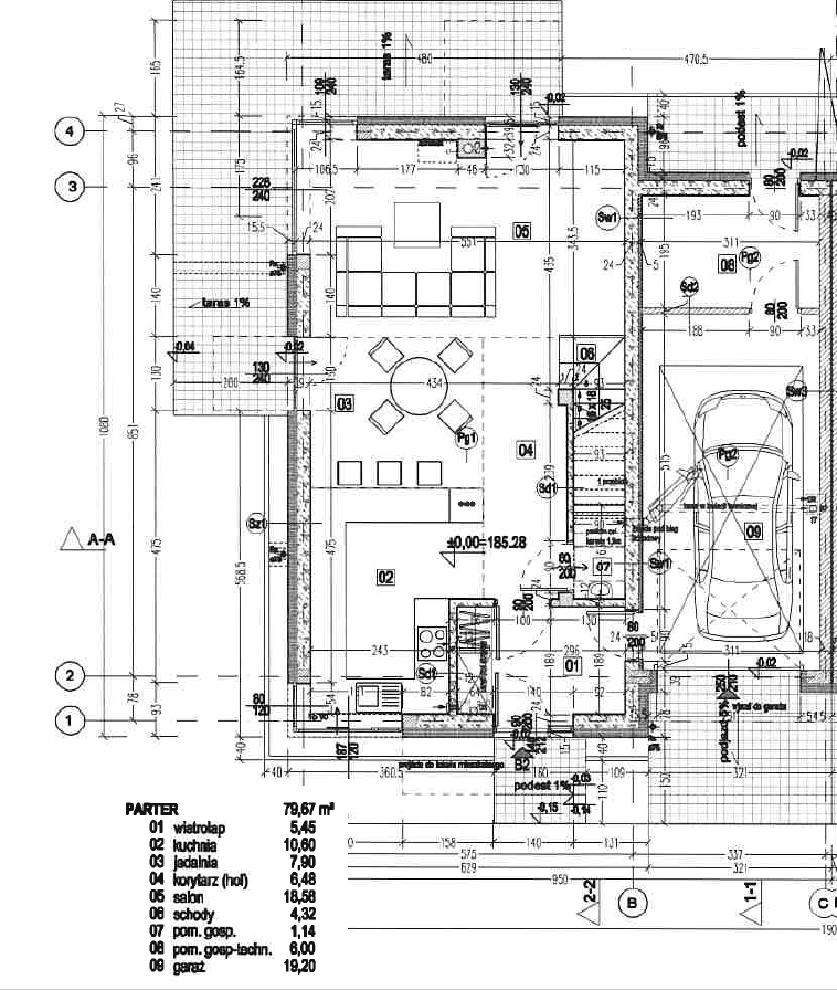
RZUTY POMIESZCZEŃ
PARTER (79.67m2) – wiatrołap (5.45), część kuchenna (10.60), część jadalniana (7.90), korytarz (6.48), salon (18.58), schody (4.32), wc (1.14), pomieszczenie techniczne (8.00), garaż (19.20). Salon jest połączony z kuchnią i jadalnią.

PIĘTRO (65.19) – korytarz (9.90), łazienka (5.31), pokój (8.75), sypialnia (10.80.) z balkonem (3.42), garderoba (3.60), gabinet (8.15) z balkonem (1.82), sypialnia (13.55), łazienka (5.13).

ZDJĘCIA









STANDARD WYKONANIA
Stan deweloperski obejmuje m.in.:
– drzwi wejściowe marki Wikęd,
– okna PCV (3 szybowe),
– ocieplenie i tynk na zewnątrz, tynki wewnątrz,
– instalacje wewnątrz i na zewnątrz budynku (przydomowa oczyszczalnia ścieków, woda z wodociągu, prąd, gaz),
– dach z blachy powlekanej,
– kocioł gazowy,
– brama garażowa na pilota,
– rekuperacja,
– ogrzewanie podłogowe parter, piętro grzejniki.
– teren wokół budynku jest wyrównany, opaska budynku i podjazd wykonane są z kostki brukowej, siatka na krety i trawnik z rolki,
– ogrodzenie panelowe.